Two Building Plots, Chapel Lane, Folkingham

Offers in excess of
£200,000
For Sale
1/6
Offers in excess of
£200,000
For Sale
Lucinda Padgett-Blythe
Sales Negotiator
01529 414333
Close  x

Request a viewing

If you would like to arrange a viewing of Two Building Plots, Chapel Lane, Folkingham, simply fill in the form below.

Close this

Pygott & Crone aim to provide our customers and clients with the best possible safe and secure service, and we are committed to protecting and respecting your privacy. We have a legitimate interest to use the personal information you share with us, to tailor our services to your requirements, and to provide you with the best possible user experience. How we use your personal information, how we may share it, and how long we keep it for is all stated in our privacy policy. By submitting this form you are accepting the terms of our privacy policy

Please wait...

Loading

Property summary

Freehold
Excellent potential development opportunity
Lapsed planning for 2 executive family houses
Granted by SKDC on 19th January 2022
Reference S21 / 2203
Delightful quiet location
Historic sought after village
For sale subject to planning
To be applied for by the buyer
Try our mortgage calculators

Get in touch

Lucinda Padgett-Blythe
Sales Negotiator
01529 414333

More about the property

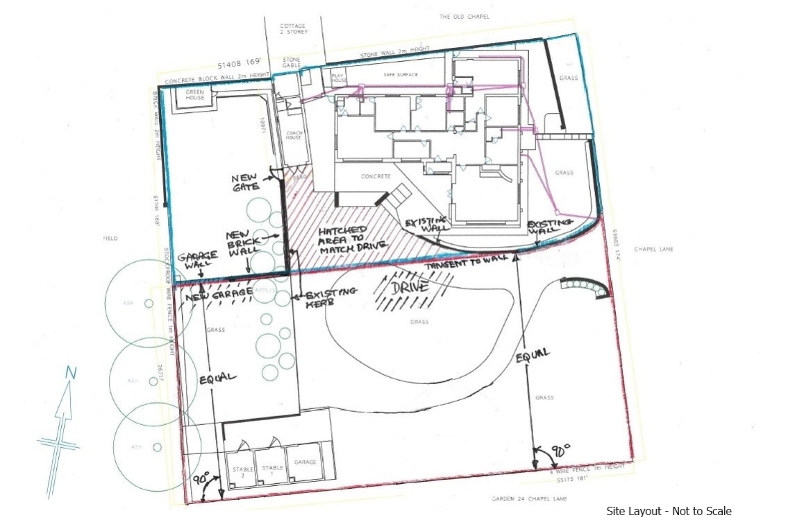
Excellent opportunity to purchase a potential residential development site in the heart of this historic and sought after village with lapsed planning for the erection of two individual family homes. The site enjoys a quiet location on Chapel Lane that runs parallel to the Market Place. Folkingham is a charming and pretty village with village store, public house and church but is conveniently positioned for access to a number of surrounding towns including Grantham some 15 miles to the West where there is both A1 road and intercity rail service. It also sits on the A15 affording good access to the City Of Peterborough to the South and Lincoln to the North.

Planning Permission was previously passed by SKDC on 19th January 2022 under reference S21 / 2203 for the erection of 2 houses, double garages & associated site works. The proposed scheme shows two impressive four bedroom, three reception room detached houses with double garages.

LINK TO SKDC PLANNING PORTAL

https://prod.publicaccess.southkesteven.gov.uk/online-applications/applicationDetails.do?keyVal=R1ZZRTONM5H00&activeTab=summary

AGENTS NOTE This planning permission has now lapsed and the site is being offered for sale subject to the buyer re applying for permisision.

View the location on a map

Click/tap here to reveal the map
Discover amenities in the local area using Google Maps
Further Information - tap an option below

Stonebow works with Pygott & Crone Estate Agents to provide their clients with expert mortgage and protection advice. Stonebow has access to over 12,000 mortgages from 90+ lenders, so we can find the right mortgage to suit your individual needs. The expert advice we offer, combined with the volume of mortgages that we arrange, places us in a very strong position to ensure that our clients have access to the latest deals available and receive a first-class service. We will take care of everything and handle the whole application process, from explaining all your options and helping you select the right mortgage, to choosing the most suitable protection for you and your family.

Stonebow works with Pygott & Crone Estate Agents to provide their clients with expert mortgage and protection advice. Stonebow has access to over 12,000 mortgages from 90+ lenders, so we can find the right mortgage to suit your individual needs. The expert advice we offer, combined with the volume of mortgages that we arrange, places us in a very strong position to ensure that our clients have access to the latest deals available and receive a first-class service. We will take care of everything and handle the whole application process, from explaining all your options and helping you select the right mortgage, to choosing the most suitable protection for you and your family.

Property documents

To access further documentation such as the property questionnaire and title plans for this property, sign up for a free Pygott Plus account.

Access documents

Broadband

Below is an estimate of broadband speeds and availability at this property. This data has been sourced from Ofcom and should only be used as a guide. For more precise speeds and availability consult a broadband provider. NB: Mbps = Megabits (or "meg") per second.

Standard: Download: 19 Mbps / Upload: 1 Mbps or less
Superfast: Download: 80 Mbps / Upload: 20 Mbps
Ultrafast: Download: 1000 Mbps / Upload: 500 Mbps

Stamp Duty Land Tax

Below is an illustration of the Stamp Duty Land Tax ("Stamp Duty") that would be payable, based on a set of assumptions. You should always check your stamp duty liability and any other costs due with your solicitor or conveyancer.

£1500 would need to be paid in stamp duty on purchasing this property, assuming that you are purchasing freehold, purchasing as an individual (or jointly with someone else), and this will be your only property.

First Time Buyers may claim a discount (relief) on purchases of £625,000 and under.

The stamp duty for first time buyers would therefore be £0.

Chat live

Chat live with a member of staff

Please provide your name and email address to continue.